九七人人干Iav品善网I欧美一级在线看I九色91视频I91天堂素人约啪I激情综合啪啪
歡迎訪問“河南天宇水處理工程有限公司”官方網站!
咨詢熱線:
185 0373 9988
廢水處理一站式解決方案提供商
免費檢測 · 免費定制方案 · 工程施工 · 設備研制
關于天宇
新聞動態
聯系我們
掃一掃 添加微信
網站首頁
中水回用
養殖/ 屠宰廢水處理
工業/化工廢水處理
食品加工廢水處理
生活廢水處理
醫療廢水處理
工程案例
水治理研究院
技術服務
網站首頁
關于我們
公司簡介
實力展示
新聞動態
公司新聞
行業新聞
產品中心
產品中心
中水回用
養殖/ 屠宰廢水處理
工業/化工廢水處理
食品加工廢水處理
生活廢水處理
醫療廢水處理
工程案例
工程案例
工藝制圖
土建圖紙
電氣設計
真實合同
更多案例更新中
水治理研究院
專家團隊
科研環境
科研成果
工藝制圖
土建圖紙
服務支持
水樣分析
方案設計
工程調試
服務保障
聯系我們
工程案例
工藝制圖
土建圖紙
電氣設計
真實合同
更多案例更新中
首頁
>
工程案例
>
電氣設計
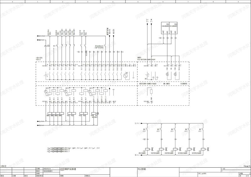
鍋爐反滲透--(PLC控制)
2024-03-16
瀏覽量:900
河南天宇設計:鍋爐反滲透--(PLC控制)
首頁
客服電話
短信咨詢
返回頂部